


| Location | Munich |
|---|---|
| Area | 1.828 m2 |
| Housing Units | 9 |
| Client | Gebrüder Moll Gmbh & Co. Kg |
| Leistungsphasen | 1-4 |
| Date | 2010 |
| Project Team | Ina-Maria Schmidbauer, Patrick von Ridder, Peter Scheller, Roman Leonhartsberger, Gerhard Haas |
There are only a few remaining gaps in the dense Gründerzeit block edges of Sendling where it seems possible to add high-quality living space in a quiet location. Inside such a plot, surrounded by closed front buildings, an idiosyncratic structure is placed in a green garden courtyard, combining housing with a day-care centre. This unusual situation benefits all the residents of the neighbourhood.
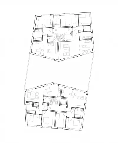
The independent building figure negotiates the orientation and organisation of the flats against the spatial impression of the courtyard. Instead of following the logical figure of the distance areas and hermetically separating the courtyard space into two backyards, the division of the building into two parts creates diverse references and lighting situations and preserves the generosity of the courtyard.
The flats take advantage of this: the rooms have an above-average proportion of façade and window area. The individual rooms face the old treetops, while the living area is located on the space in between and opposite the western front building. The large flats on the 3rd floor organise themselves freely around the development core. The large terrace on the nursery serves as a communal open space.

