


| Location | Munich |
|---|---|
| Area | BGF 6.113m2 |
| Use | Living, Supermarket, Cafe |
| Housing Units | 42 |
| Client | Bayerische Landesbrandversicherung AG |
| Landscape Architects | Kronenbitter Landschaftsarchitekten |
| Structures | BPR Dr. Schäpertöns + Partner |
| Building Technology | Ingenieurbüro Spiegl |
| Electrical | Raible+Partner GmbH & Co. KG |
| Fire Protection | K33 Brandschutz |
| Building Physics | Imakum GmbH |
| Leistungsphasen | 1-5 |
| Status | built |
| Date | 2021 |
| Awards | Honorary Award for Good Housing 2023 |
| Publication | BAUWELT - 05/2022 |
| Project Team | Ina-Maria Schmidbauer, Patrick von Ridder, Peter Scheller, Charlotte Meyer, Veronika Groß, Ruth Auffarth, Michael Gsell |
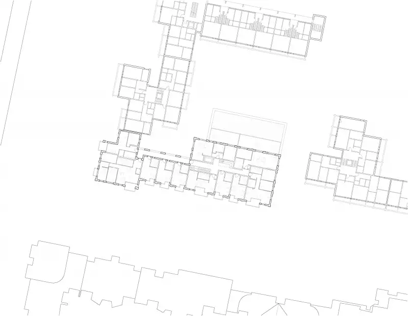
The site is located on a corner between urban perimeter block development and an open-plan ensemble from the 1970s. To replace an existing two-storey structure with shop use, an urban house is to be built to accommodate larger retail and flats on the upper floors.
The design leaves a space at the street corner, builds on the recessed existing building with a five-storey body and continues upwards over four and five storeys respectively to a seven-storey high point along Zaubzerstrasse.
Instead of the existing car park (corner of Zaubzerstrasse and Stuckstrasse), a small square is created with a public terrace for the café. The supermarket faces south towards Zaubzerstrasse and is also entered from there. A café/bakery shop is located at the square. Access to the flats is located inside the neighbourhood, independent of the supermarket. The access to the apartments follows the logic of the entire complex, which is always accessed from the inside along the passageways.
With the east/west oriented high point on Zaubzerstrasse, the existing typology of space-creating crossbars projecting into the inner courtyard is taken up. By staggering the upper storey, the structure adheres to the usual storey structure in the street. The new building mediates between the two worlds of the block and the dissolved development of the estate. The result is differentiated open spaces that respond to the respective use and context.
On the ground floor/basement there is a supermarket and on the six upper floors there are 42 very different flats, ranging from flats to maisonettes. A common staircase provides access to the entire building; in addition, the flats in the west are connected via an arcade. Roof terraces are located on the roofs and some of the maisonettes have spacious two-storey rooms. The living quality of all flats is very high. Overall, there is a wide range of flats from small flats to large family flats. Since the builder is also the owner of the property, all flats are rented out.
The building is constructed as a masonry structure of insulating bricks - with a high-quality façade of prefabricated reinforced concrete elements on the ground floor. There are generous views into the ground floor rooms of the supermarket and, via an air space, also into the sales rooms in the basement.
The public base speaks a robust but calm language: with large openings, canopies assigned to them and joined profiled precast concrete elements. The façade of the upper floors is finely profiled with projections and recesses. Different elements - metal-clad parapets, vertical bands and two window formats - form a varied composition, sometimes with breaks. The profiling and order refers to the Beton Brut neighbourhood and interprets it into a house in the structure that is committed to the context but still independent.














