Studie Wohnbebauung RIO in Riem


| Location | Munich |
|---|---|
| Area | 12.500m2 |
| Housing Units | 107 |
| Client | Wohnbaugenossenschaft wagnis eG, WOGENO München eG |
| Landscape Architects | Grabner Huber Lipp Landschaftsarchitekten |
| Status | Study, 2nd Prize, 2016 |
| Date | 2016 |
| Project Team | Ina-Maria Schmidbauer, Patrick von Ridder, Peter Scheller, Dorian Cani, Christina Nachbauer, Sandra Panzer, Veronika Groß |
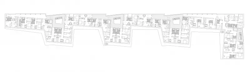
The long and rather narrow plot for the future RIO development along Willy-Brandt-Allee has a much higher residential quality to the south and towards the courtyard due to its orientation and the exhibition centre to the north. This is where most of the living should be oriented, i.e. the flats. To this end, the "surface" will be extended to the south. The annexes, which are rather like back buildings in the development plan, will be shaped into large stately houses - really thick houses. The ensemble presents itself as a coherent house/conglomerate with as many different qualities and places as possible, despite the somewhat monotonous plot.
The ground floor is planned towards the street with public uses, small studios are possible as well as larger units, and at the boundary of the cooperatives there is the community space oriented towards the courtyard and the street. The mobility centre and the co-working area are attached to the arcade in the east. Access is via the halls and from the 3rd floor via arcades. The halls have a sufficiently large air and stair space that makes a vertical spatial connection for the community possible. The halls are converted into arcades in various forms from the 2nd to the 4th floor. These are also wider and thus more usable and can be used communally or individually - similar to the Rue Interieure. On the 4th floor, the arcade leads once around the entire building - a rue exterieure to the city.
The varied development concept results in a wide variety of types. There are multi-storey flats in the halls of the thick houses. Smaller south-facing flats accessed from the arcade are arranged between the Thick Houses. The maisonettes are only found to the east, on the 2nd floor (connected to the 1st floor) and the 4th floor (connected to the 3rd floor below and the 5th floor above). In the east, facing Selma-Lagerlöf-Strasse, there is a large flat for shared flats, and further flats are arranged through a staircase facing east. This creates a consistent logic: on the outside there are stair halls and arbours and on the inside there are continuous balconies.
The consistent arrangement of the bathrooms/kitchens leads to utility shafts that are continuous across all floors. The vertical distribution of the installation is ensured for the sanitary and heating installations (see plans/graphics). Standardised bathroom types were planned: two baths with bathtubs, one shower room and one WC. Prefabricated bathrooms (sanitary prefabricated cells) could thus be used. In a first step of standardisation of the building services, the use of prefabricated registers would be conceivable.
In view of the desire for affordable housing, we suggest a more conventional construction method with tried and tested constructions and materials: a solid building with thick brick walls (insulating bricks). Further on, it can be examined whether a reinforced concrete skeleton construction or a massive construction with load-bearing walls makes more sense.
The street side and the courtyard side are very different worlds, and the house should show this. The façades express this difference. In the north, facing the street, we propose a ceramic covering for the exterior wall. The halls should be bright and easy to read in the façade, but without an elaborate façade construction. For this reason, walls made of energetically optimised glass blocks are used here.
The courtyard façade is given its own character with a steel structure for the balconies. This simple framework will be the generous exterior space of the flats and will have a high recognition value due to the coloured paint.





