WA1 in the neighbourhood on Paul-Gerhardt-Allee


| Location | Munich |
|---|---|
| Area | Housing, Daycare centre, Gastronomy |
| Client | Dr. Hendrik Schlune |
| Landscape Architects | lohrer.hochrein landschaftsarchitekten und stadtplaner gmbh |
| Visualisation | Jonas Bloch |
| Status | Competition 08/ 2016 |
| Date | 2016 |
| Project Team | Ina-Maria Schmidbauer, Patrick von Ridder, Peter Scheller, Christina Nachbauer, Stephen Bushell, Sibylle Schmitt |
WA1 is located at the entrance to the neighbourhood, on the town square, which forms an important public space with shopping facilities and a primary school and is intended to promote the networking of the new neighbourhood with the surrounding area. The buildings envisage a mixed use of subsidised housing, a day care centre and a neighbourhood meeting place with a café.
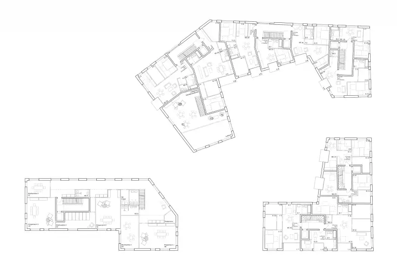
The rather heterogeneous situation of WA1 at the entrance to the neighbourhood is translated into an ensemble of several houses with very different spaces that network with the surroundings. In this way, the ensemble mediates between the rather small-scale grain of the surroundings and creates a transition to the clear courtyard structure of the urban design. The structure forms a rather closed courtyard for residential use. A passage from north to south leads to a small forecourt from which the day care centre is accessed. The slightly polygonal bodies relate to the high point at the entrance square and create a differentiated spatial structure. In this way, WA 1 becomes a player at the entrance to the neighbourhood.
Different conditions on the outer sides of WA1 lead to different residential forms and ground floor zones. The ground floor of the main building to the north facing the square houses the children's, family and neighbourhood meeting place. The meeting places extend over the entire ground floor and are accessed via a large opening with a passage to the courtyard. This allows views into the courtyard and to the south to the daycare centre - thus creating a clear plus in spatial references and urban quality of stay on this north side.
To the west, the building bends to create a connection to the supermarket and also improves the lighting of the living situation. The open space in the west is used by the café of the meeting place. The upper floors of the building are used for living. The building of the day-care centre is located to the south of the passage. The cross connection through the site also allows this use to become part of the urban situation at the entrance. The day-care centre extends over three storeys and the two upper storeys are used for living. Thus, the different uses are clearly assigned to buildings, but always mixed; truly urban houses are created.
All the residential buildings are accessible from the outside. As a rule, the houses are organised as triplexes. Due to the position of the buildings, a sound-protected courtyard area is formed towards which people live. The open spaces can be used without additional measures. The flats in the most noise-impacted locations in the north are generally planned as through types.
The base of the ensemble is a massive plinth of exposed concrete. All public uses are located within this concrete façade. The residential use receives a façade of clinker brick slips in a watery violet. This somewhat darker tone contrasts well with the new buildings in the vicinity, which are rather light, gives the site its own identity and expands the variety of façades in the neighbourhood. In this way, it does not become boring. All the buildings have the same façade system. The entrances to the residential buildings are clearly marked by the slats that reach all the way to the base. And are thus easy to find, according to the simple principle: public = concrete, residential = brick slips.
The horizontal division of the façade across the storeys is achieved with slight projections and recesses at the storeys and via parapet panels. The windows facing the street in the north have a balustrade, the windows facing the courtyard and the quieter sides are flush with the floor.










