Competition Orleanshöfe


| Location | Munich |
|---|---|
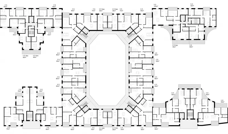
| Area | 107.365 qm GF |
| Housing Units | 401 |
| Client | Orleanshöfe GmbH & Co. KG |
| Date | 2020 |
| Awards | 3rd Prize |
| Publication | Competitonline - 25.02.2020 |
| Project Team | Ina-Maria Schmidbauer, Patrick von Ridder, Peter Scheller, Charlotte Meyer, Chalotte Reith |
LOCATION
To the right of the Isar, in the younger part of the city of Munich and close to the Ostbahnhof (East Railway Station), the construction area stretches longitudinally between the city and the railway line.
This northern part of the city beyond Orleansstrasse was only formed into a real part of the big city around the turn of the century. In the older parts, through the implementation of Zenetti's urban planning ideas, which followed a French-influenced urban ideal, and in the neighbouring north-eastern part, through Theodor Fischer's romantic urban planning, which was influenced by Camillo Sitte.
For a long time, the narrow strip of the building site was assigned to the railway track.
It had a clear function. The station was the only building on the railway side of Orleansstrasse. The house facades formed the city's edge to the railway to the south.
In the course of the modernisation of the railway and the accompanying redesignation of numerous areas along the track, the question now arises:
What kind of character does the city have at this point? What kind of place do we want to create?
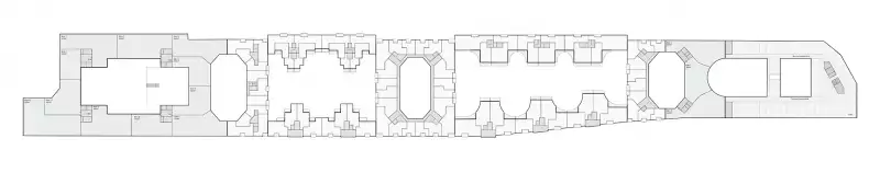
CITY SPACE
To passers-by travelling by train, the quarter presents itself as a new urban building block with a striking silhouette. The basis of this urban prospect is formed by elongated arcades in the south, which create space for the development of the southern residential addresses and thus naturally complement the special character of the location in the city along the tracks. At the same time, the precious residential courtyards are completely freed from crossing and circulation, i.e. public duties.
At Ostbahnhof, the "Cour d'Orleans" create a self-evident prelude by offering a square that responds urbanistically to the opposite street confluence and is characterised by public uses. At the northern end of the structure, a tall house marks the notable urban space called Haidenauplatz.
OPEN SPACE
The open space is characterised by a sequence of different courtyard typologies, with the different demands formulating the design. The access courtyards form the entrée to the inner courtyard structure. They serve as distributors and offer the necessary orientation through their open, reduced design.
The more private residential courtyards are entered through passages. A free routing is intended to encourage residents to explore the courtyards. Smaller paths lead through a loose planting that becomes denser towards the edge and in this way creates a pleasant privacy to the ground floor zone. The existing tree backdrop is completely preserved. Along the railway line is the biotope corridor, which is protected from unwanted access by dense initial planting towards the building.








