


| Location | Munich |
|---|---|
| Area | 200 m2 |
| Client | SWM Stadtwerke München GmbH |
| Building Technology | TEUBER+VIEL Ingenieurgesellschaft für Energie- und Gebäudetechnik mbH Beratende Ingenieure VBI |
| Electrical | Ingenieurbüro Silberbauer |
| Building Physics | IBN Bauphysik Consult |
| Visualisation | lux und nadir |
| With | LSiC Steinert Ingenieur Consult/ Bettina Steinert (LPH 6-8) |
| Leistungsphasen | 6-8 |
| Status | completion 07/ 2014 |
| Date | 2015 |
| Project Team | Ina-Maria Schmidbauer, Patrick von Ridder, Peter Scheller, Yana Tsvetkova |
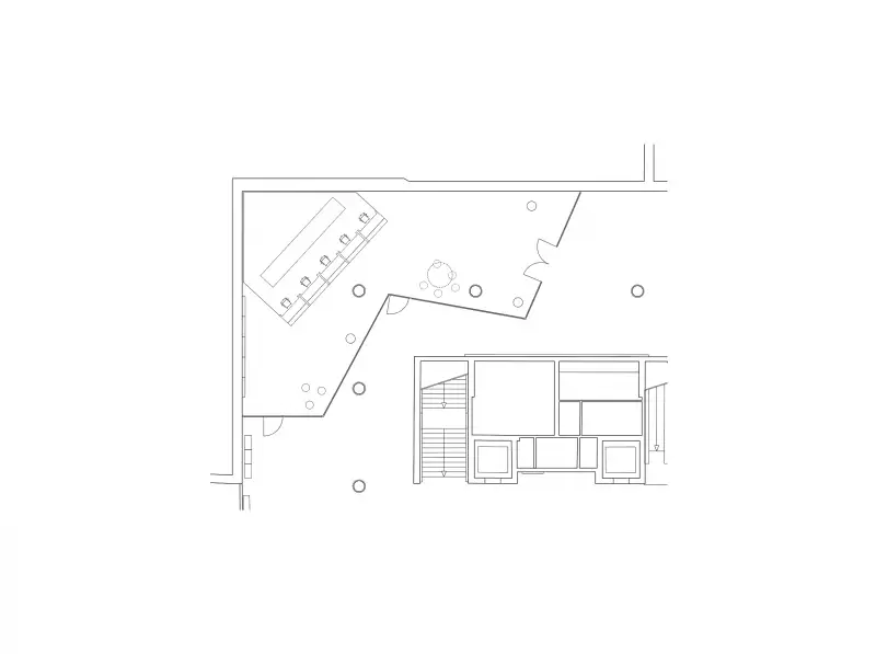
As a temporary solution for the customer centre of the MVG - Münchner Verkehrsgesellschaft (Munich Transport Company), an area on the barrier floor of the Sendlinger Tor underground station is being made temporarily usable. The new façade separates the public space from the customer centre in a free form. The continuous glass façade plays with the existing space, the pillars that characterise the location alternately become part of the centre or remain part of the outdoor space. The transparency is of great importance, as the centre is to be quickly perceived as a new, unfamiliar place.
The existing building: wall and floor remain untouched, the installation on the ceiling is openly guided. The back office and the 5 counselling stations are located on an adjusted platform. The counselling stations, which are oriented diagonally to the room, resemble packing crates that can be set up for short periods and quickly taken down again. The furniture is made of simple maritime pine boards and lacquered with a high-gloss finish. In this way, something very cheap becomes very valuable. In the room there are loose stools to sit on. Under a large pendant lamp, a special place is defined in the flowing space.



