Palais Mai
Projects
Office
Contact
de
en
Projects
competition
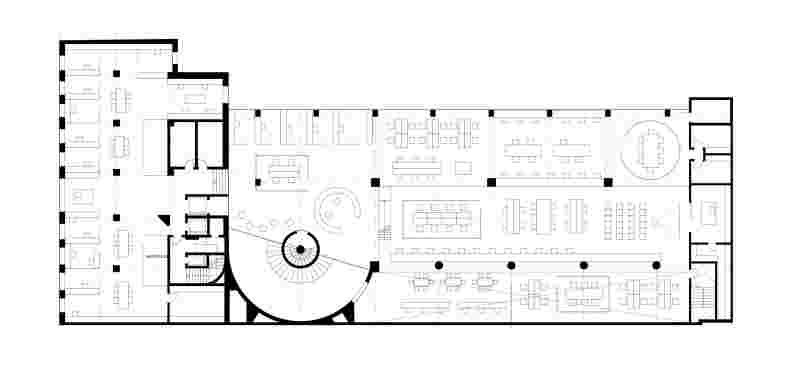
Working in Munich Central Station
Location
Munich
Use
Working
Client
Capital H Immobilien
Visualisation
Jonas Bloch
Status
study
Date
2020
Project Team
Peter Scheller, Patrick von Ridder, Charlotte Meyer, Pedro Hasse