


| Location | Munich |
|---|---|
| Client | Import Export |
| Status | Study, 2013 & 2016 |
| Date | 2016 |
| Project Team | Ina-Maria Schmidbauer, Patrick von Ridder, Peter Scheller, Stephen Bushell, Christina Kullman |
The association "Import-Export" creates interfaces for people of all generations and promotes the diversity of art and culture.
As part of "Munich Central", a city project of the Münchner Kammerspiele, Import Export opened at Goethestraße 30 in 2010. The temporary facility has carried out diverse artistic, cultural and social projects. These were characterised by their local, regional, inter- and transnational orientation. The projects received support from institutions such as the Federal Cultural Foundation, the Cultural Department of the City of Munich and the responsible District Committee 2.
Import Export is involved in organising music and performance projects, runs a gastronomy with a canteen and organises club evenings with Djs and sometimes with bands. The concept reflects the diversity of the city's society. Import Export is a focal point for artists from local contexts, but also far beyond.
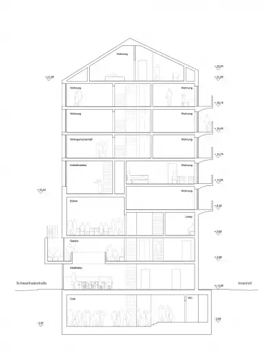
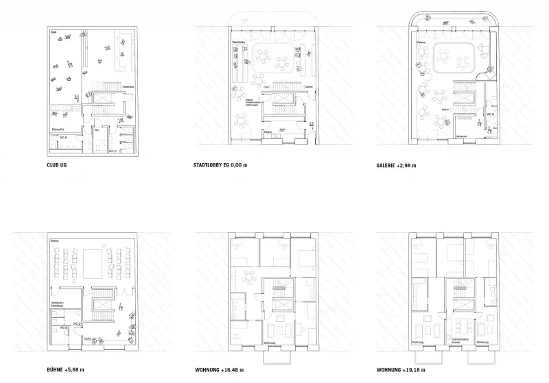
The operation at Goethestraße 30 was planned from the beginning as an interim use. Since September 2012, an attempt has therefore been made to develop a long-term concept for the space with the series "Dialog! Raum" series to develop a long-term concept for the "Import Export" and to find a permanent location for the institution. A gap in the Schwanthaler Strasse, which was created as a "development corridor" during the conversion of the Deutsches Theater, appears to be a suitable location. The aim of the project is to develop a new location for the cultural activities and flats in the immediate vicinity of the first location of Import Export in Goethestraße.
The present proposal expands the cultural programme in the direction of collective housing models for new Munich residents, be they guests, students, artists or refugees. The current challenges in the city offer a great opportunity to connect known actors with established concepts for transcultural interaction with the idea of a new home for the newcomers. In this context, smaller projects with a few exploratory typologies of housing make an important contribution that must not be lost in the sheer mass of the existing task.
SMALL THINGS MATTER!
The spaces of the collective studio and stage on the upper floor, the cantina on the ground floor and the club in the basement, which are important for cultural operations, are recognised as integrative building blocks in the fabric of the house and enable the New Munichers to act as hosts and get to know the guests from Munich.



