


| Location | Wasserburg am Inn |
|---|---|
| Area | 193 m2 |
| Client | K. L., Wasserburg am Inn |
| Leistungsphasen | 1-8 |
| Status | Completion 03/ 2006 |
| Date | 2006 |
| Publication | "Traumhäuser unter 200.000 Euro" - 2010, " Haus L" - 2010 |
| Project Team | Ina-Maria Schmidbauer, Patrick von Ridder, Peter Scheller |
The house stands on the edge of a large garden space that is made up of individual garden plots from a housing estate for the nearby hydroelectric power plant from the 1930s. This existing, small-scale plot structure has been redensified with single-family houses along the road in recent years.
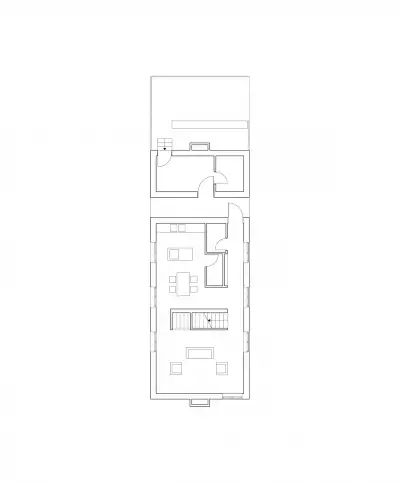
The house sits at the furthest point of the garden strip on the last lot to be sold, in the shadow of an 8-story nursing home to the south built in the 1970s. The narrow, elongated structure is oriented lengthwise to the existing residential path and encloses it spatially. One does not enter the house directly from the street, but in a passageway between the residential part and the service area, which spatially mediates between the publicity of the street and the privacy of the garden.
The house was built as a solid construction with "Inngrün" coloured, precious encrusted plaster. It does not have a cellar. The eastern wooden French doors are set almost flush with the façade in accordance with the orientation towards the public residential path. Towards the west, towards the garden, the windows were provided with a deep, protective reveal.







