


| Location | Aschau im Chiemgau, Pölching |
|---|---|
| Area | 210 m2 BGF |
| Housing Units | 1 |
| Client | private |
| Structures | a.k.a. Ingenieure |
| Building Technology | Team für Technik |
| Leistungsphasen | 1-8 |
| Status | completion 08/ 2007 |
| Date | 2007 |
| Awards | Architekturpreis Zukunft Wohnen 2009, shortlisted |
| Publication | A & W SPECIAL Ausgabe 01/2009, ARCHITEKTURPREIS ZUKUNFT WOHNEN - 2009, ARCHITEKTOUREN 2008 |
| Project Team | Ina-Maria Schmidbauer, Patrick von Ridder, Peter Scheller, Sebastian Multerer, Felix Martin |
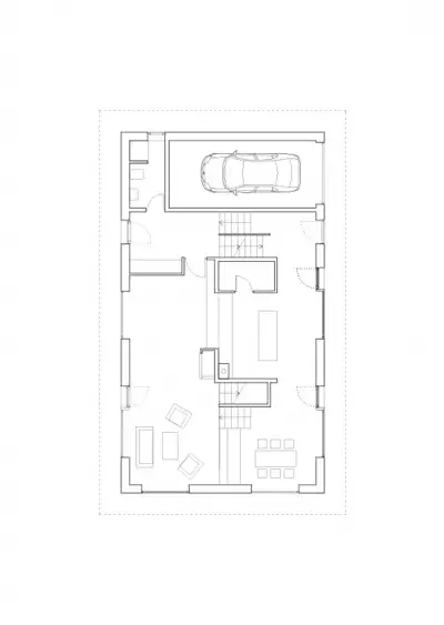
The house is a detached building situated on a beautiful plot on a gentle slope with a view of the Kampenwand in a small hamlet near Aschau. Deviating from the development plan, a compact building with an integrated garage parking space has been created. Following the slope, the house develops in split levels upwards.
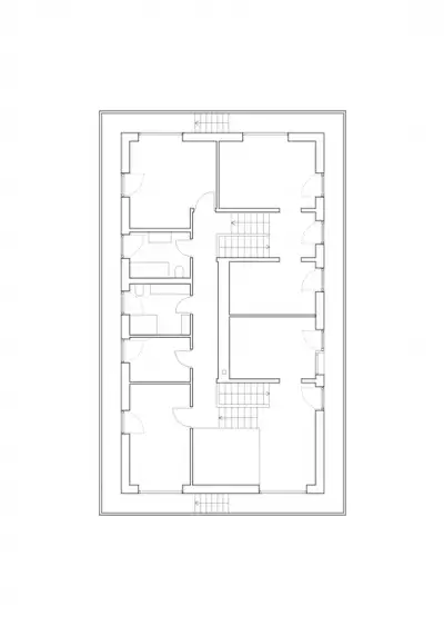
This measure and the large openings in the façade on the ground floor create a strong spatial connection to the outside space. The internal development of the house allows for a variety of spatial connections via two staircases of the same type and is complemented by the circumferential balcony. The surrounding balcony, which is protected by a slatted cladding, creates an additional offer for the bedrooms and children's rooms on the upper floor: a space that is both interior and exterior.
In its choice of materials and construction methods, the house is oriented towards typical local features. The open ground floor in plastered masonry forms the base on which the compact, closed upper floor with its uneven pitched roof rests in dark glazed wood.








