


| Location | Munich |
|---|---|
| Area | 207 m2 |
| Client | H. B., Munich |
| Leistungsphasen | 2-3, 5-8 |
| Status | Completion 04/ 2007 |
| Date | 2007 |
| Publication | HÄUSER Ausgabe 6/2009, "Die besten Einfamilienhäuser in der Stadt" - 2009, ARCHITEKTOUREN 2008, ELLE DECORATION Ausgabe 4/2008, HÄUSER Ausgabe 3/2008 |
| Project Team | Ina-Maria Schmidbauer, Patrick von Ridder, Peter Scheller, Florian Dirschedl, Felix Martin |
In the so-called Isarvorstadt, a Wilhelminian district in the south of Munich, a two-storey extension was built in a backyard on top of an existing workshop building from the early 19th century on an existing fire wall.
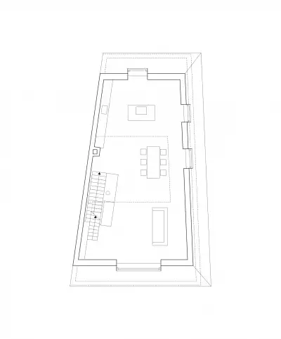
The 6m high, tent-like all-room supplements the living spaces in the existing workshop building with a living and dining area, a kitchen block, and a workstation on the gallery.
The column-free, spacious interior is lit by roof openings with different slopes, dimensions and orientations.
The steeply pitched, metal-covered, and highly thermally insulated roof surface was constructed as a partially pre-assembled steel frame structure; the supporting structure disappears into the roof surface - it is invisible.







