


| Location | Zorneding |
|---|---|
| Area | 2.500 m2 |
| Client | Gemeinde Zorneding |
| With | IB Lück (project management) |
| Leistungsphasen | 1-4 |
| Status | completion 12/ 2014 |
| Date | 2014 |
| Project Team | Ina-Maria Schmidbauer, Patrick von Ridder, Peter Scheller, Wolfgang Schedlbauer, Dominik Lang, Gerhard Haas |
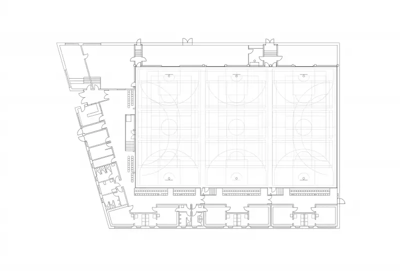
The new triple sports hall in Zorneding is located on the southern edge of the community. In the immediate vicinity of the other sports facilities of TSV Zorneding e.V. and in an exposed position on the main road 304, it will become a feature visible from afar in the surrounding area.
The hall is given a special character by the readability of the stacked volumes: the base and the body of the hall. The base of the hall appears as a rather closed volume with black glazed larch wood formwork and horizontal window bands. The volume of the actual sports hall seems to pierce this black plinth. The hall is lowered 1.20 m into the ground and transforms into a translucent cube of profiled glass in the upper part.
During the day, this ensures sufficient lighting of the hall and becomes a source of light shining outwards in the dark. This makes the distribution of functions inside visible: the sports hall is located as a central element in the core of the building and the secondary functions (changing rooms, toilets, storage space) are housed in a ring around it in the base.
The triple sports hall, built in a mixed construction of solid and timber system construction, fulfils the community's long-standing need for a new sports facility. In addition, it was awarded the DGNB silver certificate as a model project of the German Sustainable Building Council.
Reference project "Guide to Sustainable Sports Facility Construction", Federal Institute for Sports Science, 2016
http://www.bisp.de/




