Competition Paul-Gerhardt-Allee


| Location | Munich |
|---|---|
| Area | 30.600 m2 |
| Housing Units | 247 |
| Client | CORPUS SIREO Projektentwicklung Wohnen GmbH |
| Landscape Architects | grabner + huber landschaftsarchitekten partnerschaft |
| Visualisation | Jonas Bloch |
| Status | Competition 10/ 2015, 3rd prize |
| Date | 2015 |
| Project Team | Ina-Maria Schmidbauer, Patrick von Ridder, Peter Scheller, Christina Nachbauer, Nicolas Geißendörfer, Veronika Groß, Stephen Bushell |
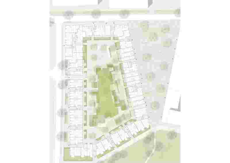
The parcelled urban development of the urban design is translated into an ensemble of different houses on a common base. The common base develops from the high point that is important for the entrance. The high point is the origin of the courtyard and its anchor. The tall residential building marks the start and clearly relates to its neighbour at the entrance to the neighbourhood.
The overriding principle of the courtyard development is: the strong contrast between the public exterior world of the neighbourhood and the private interior world of the courtyard. This leads to a consistent development of the buildings from the outside. If possible, the living situation benefits from both qualities - people live on both sides. The development reacts to the very different conditions and qualities of the surroundings and becomes an ensemble together with the base. Different conditions on the outer sides of the courtyard lead to different living forms and ground floor zones. The planned accesses and the formulation of the ground floors promote urban life and at the same time protect the privacy of the living situation.
To the north, the base is two-storey, as the space is the most urban of the courtyard. Towards the school and the narrow street space, an arbour-like zone is placed in front of the residential use, like a filter to the public space. The typology of townhouses chosen on the Anger strengthens the urban life on the ground floor facing the Anger. The flats all have their entrances to the Anger and interact more strongly with the outside world than the multi-storey flats. In the west, following the high point, the development is set further back from the street. This front zone is used by the studios on the ground floor, creating a special form of urban life. To the south, facing the park, the plinth remains single-storey but flush with the façade. As on the other sides, it accommodates the entrances and the loggias on the ground floor and marks a common horizon. The continuity of the vertical profiling remains, albeit less strongly formulated and calmer because less urban.
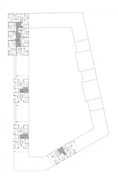
The chosen typologies allow for different forms of living. For example, there is a pierced living type, where life is lived in the flowing space between cooking and living. The hallway type, which allows for a different form of living in more equivalent rooms, provides for a somewhat larger kitchen (eat-in kitchen) and similarly large rooms organised via a hallway. On the ground floor there are two different types that deal with this particular situation. A studio type in the west, which provides for a room at street level - as a small commercially used room (studio) with a flat located on the mezzanine floor. To the north, a type that offers a similar split level to the living space with the advantage of providing a higher living space and direct access to the courtyard.
The base of the courtyard is a watery reddish coloured plinth of joined precast concrete. The high point that develops from this base has a net-like primary structure of the same precast elements, which is either "filled" with glazing or additionally with fields of ceramics. The coloured sunshade provides an additional accent. The entrance takes on a special significance due to these high-quality materials. The rest of the buildings have plaster facades and vertical window formats. The higher, six-storey buildings are more strongly profiled with loggias. This results in a play of foreground and background, the individual houses are given their own character features in a common language.
The exterior façades differ from the courtyard façades, a logical consequence of the described difference between exterior and interior. The design in the courtyard relates more to the open space. The long, transverse balconies step into the courtyard like arbours and make the architecture more airy. Vertical bands with upright window formats alternate with the stacked balconies. The courtyard façades speak a common language with recurring motifs. Due to its location (in Pasing), the courtyard shows more suburban motifs on the inside that are not found on the outside.








